- ООО "ТАМ РЕППО"

ТВОРЧЕСКАЯ АРХИТЕКТУРНАЯ МАСТЕРСКАЯ РЕППО
Перейти к контенту

Главное меню:

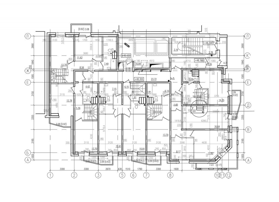
Уровень 22
 

Жилой дом-вставка
Санкт-Петербург, квартал 23 СУН, между кк. 12-12а (Л
атышских стрелков 3)
Авторский коллектив: В. А. Реппо, Е. П. Сергина.
при участии: И. О. Иванова, А. В. Реппо.  
Застройщик: ООО «Строительная компания «С.Э.Р.»   
Заказчик:   ЗАО «Инвестиционно-строительная группа «НОРМАНН»

 
Назад к содержимому | Назад к главному меню